For sale - New Investment Self-catering apartments- Kramersdorf Swakopmund

Ref # 2397525
N$1,480,000
Property Details
1 Bed
1 Bath
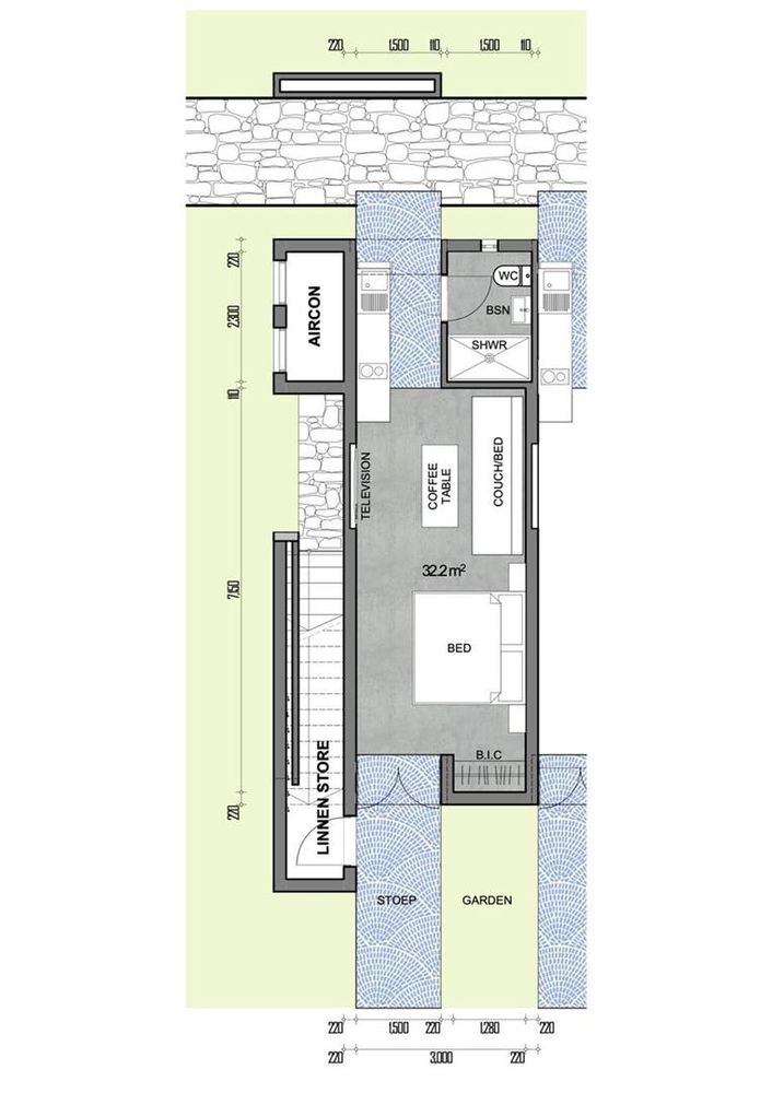
32.2m²

Discover a Prime Investment Opportunity with Oasis Self-Catering Apartments

Introducing Oasis, a lucrative investment opportunity in the heart of the hospitality industry. This property offers a collection of self-catering apartments that promise significant returns through short-term accommodation rentals. With professional management by Perfect Stay, investors can enjoy a truly passive income stream, as seamless operations are ensured for all units.

Oasis stands out with its attractive ROIs ranging from 9.98% to an impressive 26.49%, driven by consistent and reliable accommodation income. Whether you're a seasoned investor or new to real estate, this opportunity is poised to deliver substantial financial growth.

The property features both ground floor and first floor units, each designed with comfort and convenience in mind. Ground floor units offer a charming stoep area, while first floor units boast inviting balconies, perfect for enjoying the outdoors. Each unit comes fully furnished, catering to all the needs of self-catering guests, ensuring high occupancy rates and guest satisfaction.

Oasis presents an exceptional opportunity for those seeking to invest in the fast-growing short-term rental market. With professional management handling day-to-day operations, investors can enjoy peace of mind while reaping the financial benefits of this well-positioned property.

Don't miss out on this chance to secure a steady stream of passive income with Oasis self-catering apartments. Contact us today for more information and to arrange a viewing of this promising investment.

Property Features
Property Type
Apartment
Bedrooms
1
Bathrooms
1
Floor Size
32.2m²
Living Area
1
Share this Property
Make an enquiry
Interested in this property? Please fill in your details below, and we will contact you as soon as possible.
By clicking on "submit" you agree to our privacy policy.