Beautiful Modern House under Construction-Elisenheim - New progress photos up loaded

Ref # 2477681
N$3,700,000
Property Details
3 Beds
3 Baths
2 Garages
1 Covered Parking
536.74m²

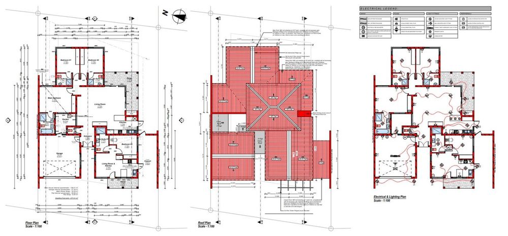
Discover your dream home in the making with this modern property currently under construction. This stunning residence is designed to offer comfort, style, and convenience.

This spacious home features four well-appointed bedrooms, perfect for accommodating your family and guests. With three luxurious bathrooms, you'll enjoy ample privacy and space for everyone.

The open-concept living area is ideal for relaxing and entertaining, seamlessly connecting to a modern kitchen equipped with top-of-the-line appliances and finishes. Whether you're hosting a dinner party or enjoying a quiet evening at home, this space is sure to impress.

For those with vehicles, the property includes a double garage, providing secure parking and additional storage options. There's also a single carport, offering extra convenience for visitors or an additional vehicle.

Don't miss the opportunity to own this exceptional modern home. Contact us today for more information and to schedule a viewing appointment as this project nears completion.

Property Features
Property Type
House
Bedrooms
3
Bathrooms
3
Garages
2
Covered Parking
1
Land Size
536.74m²
Living Area
2
Share this Property
Make an enquiry
Interested in this property? Please fill in your details below, and we will contact you as soon as possible.
By clicking on "submit" you agree to our privacy policy.
You may also be interested in these properties
N$ 2,840,000
4
3
598m²
House for sale in Omeya Golf Estate
Charming 4-bedroom Home: Style Meets Comfort
Welcome to your dream home, a stunning 4-bedroom dwelling that effortlessly combines modern elegance with comfort. This...
N$ 3,350,000
Just Listed
4
3
2
272m²
House for sale in Elisenheim
Stunning Property At Elisenheim For Sale !
Welcome to your dream home! this house offers an exceptional blend of luxury, comfort, and style. Nestled in a serene...
N$ 4,610,000
4
2
2
2
414m²
1,677m²
House for sale in Pioniers Park
Ideal Family Haven: Spacious Home, Flat & Large Garage
Welcome to this exceptional property, a true haven offering a spacious and versatile living environment perfectly...